Sherriffhales, Telford
Client:
Mr & Mrs Gunter
Category:
Residential
Projects
Location:
Sheffifhales | Nr Shifnale
Construction Value:
N/A
Size:
80m2
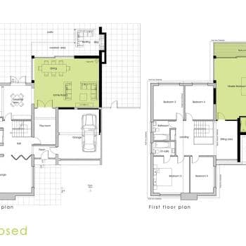
This extension is the size of a small house. But visually as you approach the dwelling in the 1980s cal-de-sac you’d hardly notice any difference compared to the neighbours, with the extension blending in nicely.
There were 2 requirements- a large master bedroom with a large dressing room (for her) and a covered bbq area (for him). Mid construction we had an email from the client stating “do you know how large our bedroom is!”.
An onsite change to the direction of the existing roof pitch over the landing area was an added expense, but a good decision as now they have a lovely feature landing and views to the Wrekin.
Need Help with a Project?
Whether your project is large or small, we're here to assist you. Don't hesitate to reach out – we're happy to help.






